Logotipo AIS Grupo
Proyectos Servicios Estudio Contacto

Inicio » Proyectos » Vivienda unifamiliar tradicional » Vivienda y taller en Motilla

Vivienda y taller en Motilla

2006

Motilla del Palancar, Cuenca

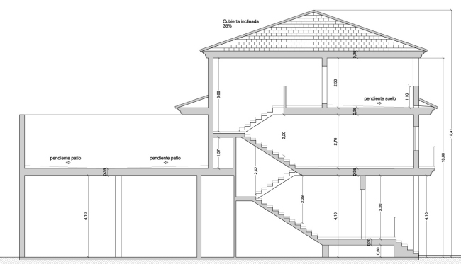
Vivienda en dos plantas más planta baja destinada a taller situado en Motilla del Palancar.

DSC05830
PLANTA
SEC

categoría

Vivienda unifamiliar tradicional

característica

taller vivienda en altura

Más proyectos de vivienda unifamiliar tradicional

Vivienda patio en La Jara

Vivienda patio en La Jara

2015 | Villanueva de La Jara, Cuenca

Velatorio en Campillo

Velatorio en Campillo

2015 | Campillo de Altobuey, Cuenca

Parque Bomberos en Alcora

Parque Bomberos en Alcora

2015 | Alcora, Castellón

Vivienda patio en Campillo

Vivienda patio en Campillo

2015 | Campillo de Altobuey, Cuenca

Gimnasio en La Jara

Gimnasio en La Jara

2014 | Villanueva de la Jara, Cuenca

Vivienda en La Jara

Vivienda en La Jara

2014 | Villanueva de La Jara, Cuenca

Vivienda en Motilla

Vivienda en Motilla

2012 | Motilla del Palancar, Cuenca

Reforma de vivienda en La Jara

Reforma de vivienda en La Jara

2012 | Villanueva de La Jara, Cuenca

Tanatorio en Tarazona de la Mancha

Tanatorio en Tarazona de la Mancha

2011 | Tarazona de la Mancha, Albacete

Vivienda en Motilla

Vivienda en Motilla

2011 | Motilla del Palancar, Cuenca

Grupo multidisciplinar con más de 10 años de experiencia en arquitectura, ingeniería y seguros.

Proyectos

Concursos Edificios dotacionales Naves e Instalaciones Reforma | Rehabilitación Urbanismo Vivienda colectiva Vivienda unifamiliar moderna Vivienda unifamiliar tradicional

Contacto

telefono
VALENCIA (627 524 727)
localizacion

C/ Maestro Sosa 16 (CP 46007)

email
ais@aisgrupo.com
telefono
CUENCA (607 164 974)
localizacion

C/ Alameda 6, Campillo de Altobuey (CP 16210)

email
arquitecturasaiz@hotmail.com

© 2006-2026 AIS Grupo. Todos los derechos reservados.