2011
Motilla del Palancar, Cuenca
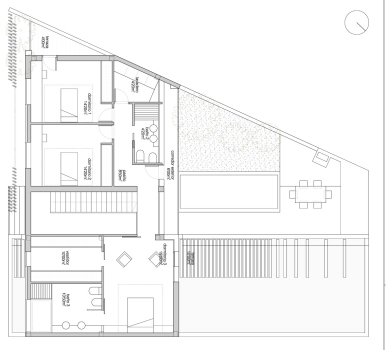
El volúmen de planta baja es una pastilla lineal situada a lo largo de la parcela, dejando a su lado todo el espacio exterior; el volúmen de planta primera gira perpendicular al de planta baja, creando una volumentría general agradable, y a su vez genera unos espacio exteriores cubiertos utilizados para garaje, que no impiden la visión completa de la parcela.
Los volúmenes de planta baja y primera juegan entre sí para aprovecharse al máximo de la parcela y que exista una relación directa entre ella y la vivienda
La planta baja se caracteriza por una distribución lineal volcando las zonas de día al espacio exterior, de forma que exista una relación directa entre ellos y pueda ser utilizado a diario por los usuarios.
Los volúmenes se revisten de distintos materiales para enfacitar el contraste.
En planta baja se distribuyen las zonas de día y en planta primera las zonas de noche.