2 Viviendas en Yemeda
2011
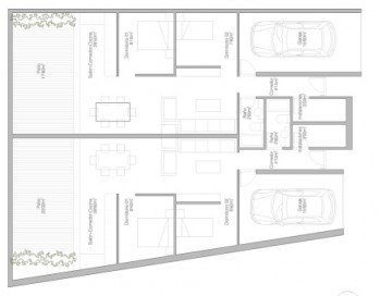
Yémeda, Cuenca
Las características de la parcela y el programa a integrar en ella hacen tomar la decisión de jugar con distintas alturas de volúmenes para iluminar todas las estancias. De esta forma las zonas de día quedan más bajas que las zonas de habitaciones, iluminando estas últimas por la diferencia de altura.
